UPDATE: After only 9 days on the market, #99 is in escrow, scheduled to close at the beginning of June. Congratulations to the lucky Buyers and happy Sellers!
Welcome to Orange Tree Mobile Home Park, a private gated 55+ community where you own both home and land—an incredible opportunity for low-maintenance living at a great value!
This lovingly cared-for home has been in the same family since it was purchased new, and reflects true pride of ownership throughout.
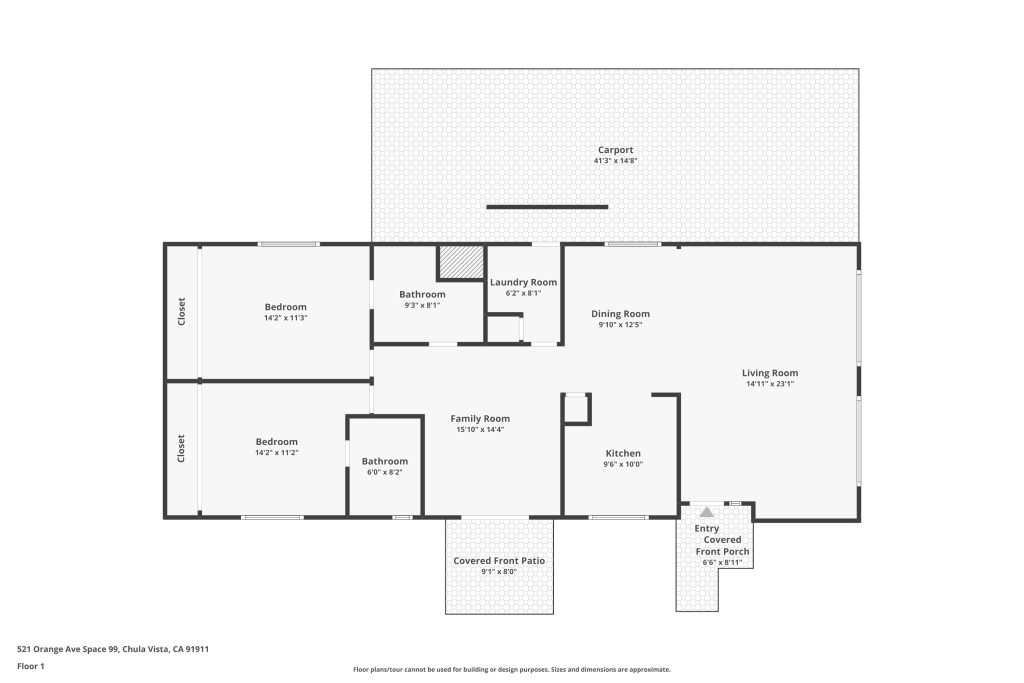
Step inside to an inviting open floor plan featuring a spacious living room, dining area, and separate family room. Natural light fills the home through dual-pane windows, enhancing the fresh interior paint and bright, airy feel.
Check out the Zillow 3D tour HERE
Both generously sized bedrooms offer large closets, ceiling fans, and direct access to their own beautifully upgraded bathrooms, providing comfort and privacy for residents and guests alike.
Additional highlights include indoor laundry with washer and dryer included, a whole-house water filtration system, and Solatubes for additional natural light.
To top it off, the property includes two large storage sheds.
This is a rare chance to own in a well-maintained, amenity-rich community with land ownership included and a very low monthly fee!
Orange Tree Mobile Home Park
Orange Tree residents enjoy a low $105 HOA fee that covers amenities, including: gated entry, a car wash station, extra laundry facilities, and two pools with clubhouses with full kitchens, which are available for private party rentals.
On-site RV parking is available for only $75 per month.
Location, Location, Location!
It’s also a great location, with easy access to the 5 and 805 freeways. Less than 2 miles to San Diego Bay, it’s a short 15 minute drive to Imperial Beach.

Are you thinking about selling your home? Here’s how I can help you make the most money from your investment.
Contact me for a market analysis and net proceeds estimate.
MLS #NDP2603897
Photo Gallery















































